|
|
|
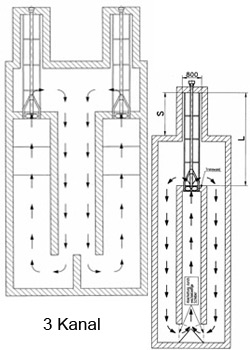
Einbauanleitung für den Betonkonus
In der Trennwand ist eine Öffnung von 1,00 m x 1,00 m vorzusehen. Das Maß „L“ ist entsprechend der Kanaltiefe bis Oberkante Spaltenboden einzuhalten. Nach Fertigstellung der Trennwand ist der Betonkonus entsprechend dem Rührwerk einzumauern. Von der Innenkante des Betonkonus muss eine Betonzentrierung bis zur Innenkante der Vorgrube konisch zulaufend betoniert werden. Durch diese Betonzentrierung wird das Rührwerk zum Einsatz genau in die Öffnung des Betonkonus geführt. Bei geringer Kanaltiefe und kurzer Vorgrube ist unbedingt darauf zu achten, dass das Mindestdurchgangsmaß von 0,72 m eingehalten wird.
Bei tieferen Kanälen ist der Betonkonus 50-100 mm schräg einzumauern. Die Grenze ist der Einsatzwinkel von 27,5°. Über 27,5° Einsatzwinkel muss der Betonkonus entsprechen unterlegt werden, damit der Rührwerkskorb abdichtet.
Welches System im Umlaufsystem eingesetzt wird ist verschieden. Beim Einsatz mit dem Betonkonus entfallen die Kosten des Einbaukastens und der Gleitschiene. Dafür sind jedoch erhebliche Kosten an Betonarbeiten erforderlich.
Empfehlung:
Um einen optimalen Wirkungsgrad zu erziehlen, raten wir für Güllekanäle bis zu einer:
• Gesamttiefe 1900 mm = Rührwerkslänge 4200 mm
• Gesamttiefe 2400 mm = Rührwerkslänge 5200 mm
• Gesamttiefe 2800 mm = Rührwerkslänge 6000 mm
• Gesamttiefe 3300 mm = Rührwerkslänge 7000 mm
In dem Rührsystem mit Betonkonus sind die Rührwerke der Serie C1-102, C/E1-102 oder E1-102 zu planen. Zum Einsatz muss ein schwenkbarer D-Bock am Rührwerk vorhanden sein. Die Halterung für die Winkelschiene findet im System mit Betonkonus keine Verwendung. Ein festes Einbauen des Rührwerkes ist problematisch, da keine Winkelschiene vorhanden ist, in der die Halterung für die Winkelschiene angeschraubt werden kann. Im axialen Wechsel betrieb ist es sehr schwer, die auftretenden Kräfte ohne D-Bock aufzufangen. Für die auftretenden Torsionskräfte während des Einsatzes mit einem Drehrichtungswendegetriebe ist der schwenkbare D-Bock zwingend erforderlich. Als vorteilhaft haben sich zu diesem Einsatz das Fangseil (Schwenkbegrenzungsseil) und die hydraulische Höhenverstellung erwiesen.

